Validation Field-Measured Data Through Design-Builder Simulation Software of Indoor Air Temperature in A Modern Residential Building in Erbil, Iraq

Validation Field-Measured Data Through Design-Builder Simulation Software of Indoor Air Temperature in A Modern Residential Building in Erbil, Iraq

Joan Atheel Ahmed* Wardah Fatimah Mohammad Yusoff Mohd Farid Mohamed

Department of Computer Engineering, Faculty of Engineering, University of Mosul, Mosul 42001, Iraq

Department of Architecture and Built Environment, Faculty of Engineering and Built Environment, Universiti Kebangsaan Malaysia, Bangi 43600, Malaysia

Corresponding Author Email: 
p125112@siswa.ukm.edu.my
Page: 
131-141
|
DOI: 
https://doi.org/10.18280/i2m.240204
Received: 
16 January 2025
|
Revised: 
11 February 2025
|
Accepted: 
16 February 2025
|
Available online: 
30 April 2025
| Citation

© 2025 The authors. This article is published by IIETA and is licensed under the CC BY 4.0 license (http://creativecommons.org/licenses/by/4.0/).

OPEN ACCESS

Abstract: 

Examining discrepancies between Design-Builder’s thermal performance simulations and field-measured data in Erbil City underscores fundamental shortcomings in the existing modeling frameworks. These inconsistencies reveal technical limitations and a deeper disconnect between generalized simulation algorithms and the specific environmental, cultural, and architectural nuances of rapidly urbanizing regions like Erbil. To bridge this gap, it becomes imperative to recalibrate thermal modeling methodologies that are context-sensitive and adaptable, aligning computational predictions with on-ground realities. This recalibration is not merely a technical enhancement but a critical step toward fostering truly sustainable residential designs that prioritize both thermal conditions and occupant comfort. This study explores the comparative analysis of inside air temperature data obtained through field measurements and simulation outputs derived from Design-Builder modelling software. The second objective from this research was to generate the dataset for the thermal conditions of the case study. As such, the process was divided into two main parts. Field measurements were first conducted on the selected case study (Ashty House /modern house). The second part involved a simulation analysis process, which was conducted on the selected case study (Ashty House), The thermal simulation results were then validated to estimate their accuracy which required determining the average values of the identified significant parameters. The generated dataset as well as the various designs explored and optimum design solutions for Ashty House were saved in a Microsoft® Excel file and could be selected manually. All the result for the indoor air temperature deviation percentage is less than 10% that will be a sign of good archiving of compatibility between field measurement and simulation data.

Keywords: 

indoor air temperature, simulation, field measurements, validation

1. Introduction

In an era increasingly defined by the urgent need for thermal condition solutions, the fusion of field-measured data with advanced simulation tools like Design Builder marks a pivotal step forward in the quest to optimize indoor air temperature regulation [1]. Traditional energy management strategies often rely on generic algorithms and standard modeling assumptions, which may fall short of capturing the nuanced variations inherent in real-world environments. However, by incorporating site-specific data into the simulation process, this approach yields a more nuanced and precise model of indoor climate conditions, accounting for variables such as thermal mass, occupancy patterns, and local climate influences [2]. This refined modeling capability not only empowers building managers to devise more thermal comfort -saving measures but also significantly contributes to enhancing occupant comfort, an often-overlooked yet critical aspect of building design. Therefore, combining field-measured data with Design Builder helps close the gap between theoretical frameworks and practical uses and indicates the beginning of an era of increased accuracy in thermal condition management that could serve as a model for future innovations in sustainable building practices [3].

Regarding contemporary architectural design, the convergence of technology and environmental science presents a pivotal opportunity to enhance building performance [4]. This essay examines the capability of Design-Builder simulation to accurately reflect indoor air temperature within contemporary residential buildings in Erbil City, Iraq, an area characterized by its unique climatic conditions [5]. As urban areas increasingly face environmental challenges, ensuring thermal conditions and occupant comfort has never been more critical [6]. This investigation delves into the core of whether a simulation tool like a Design-Builder can transcend theoretical modelling to offer reliable predictions that align with actual field-measured data [7]. The impetus behind this study is not merely to validate the simulation's precision but to underscore its potential as a transformative tool in optimizing residential building performance amidst Erbil's climatic idiosyncrasies. By methodically comparing the outputs of the Design-Builder simulation with empirical data collected from a real-world setting, this study posits that the simulation stands as a robust and indispensable asset in the arsenal of architects and engineers striving for sustainable urban development. This study contends that the Design-Builder simulation is an adept tool for accurately modelling inside air temperatures in contemporary residences located in Erbil City, Iraq [8]. The fidelity of the simulation to real-world conditions is demonstrated through a meticulous comparative analysis involving both simulated data and field-measured temperature readings within the studied environment [9].

The accurate simulation of indoor air temperatures in modern residential buildings remains a critical challenge, particularly in regions like Erbil City, Iraq, where unique climatic conditions and construction practices create complex dynamics. While simulation software such as Design-Builder offers powerful tools for predicting energy performance and thermal behavior, a significant research gap exists in its validation against field-measured data specific to Erbil’s urban environment. The scarcity of localized studies further complicates this endeavor, as most available literature focuses on broader or unrelated contexts that fail to account for the distinctive architectural styles, building materials, and climate-responsive strategies prevalent in this region. A key challenge lies in reconciling the discrepancies between theoretical simulations and real-world measurements due to input uncertainties, calibration complexities, and contextual factors like diurnal temperature variations or unconventional construction techniques often employed locally. Without thorough validation against empirical data, the reliability of such software for accurately reflecting indoor thermal conditions-and thereby informing sustainable design decisions-remains questionable. This study seeks to bridge this critical gap by leveraging field-measured temperature data to validate Design-Builder's predictive accuracy within Erbil's residential sector, addressing both methodological inconsistencies and contextual considerations absent from existing research frameworks.

2. Methodology

There are three sections to the methods. An overview of the case study is given in the first section. The first section identifies and analyses the building materials and construction methods used in the reference case; the second section describes the field measurements that were conducted primarily to confirm the simulation results; and the third section describes the simulation case and modelling analysis for the case study to compare the outcomes of the simulation with the field measurements. A variety of techniques were employed in this investigation, such as computer program simulations, field measurements, and observation. Field observations were conducted through public interviews to gather data on the construction materials utilized, the building model's shape, human activities, and the thermal comfort level experienced by building occupants. In the meantime, field measurements were made to ascertain the building's dimensions, indoor air temperature. Following the collection of data from the initial identification, field surveys and observations were employed as variables in the computer software simulation.

2.1 Description of case study building

One of the oldest historical towns in the world, Erbil was constructed by the Assyrians, who ruled over 4500 years ago. During the time when the caravan route connecting Baghdad and Mosul passed through, Erbil was a crucial commercial hub and a gathering place for convoys [10]. The province of Erbil is in northern Iraq and shares borders with Iran to the east and Turkey to the north. The total area of the region is 13,165 square kilometers [11]. One of Erbil's most significant features is the Erbil Citadel, one of the city's many old hills and historical sites [12], as illustrated in Figure 1.

As shown in Figure 2, there are two primary residential building types in Erbil City: apartment buildings and homes. Houses can be joined to adjacent houses on one, two, or three sides, or they can be detached [13]. A staircase leads to the penthouse, and they usually have one or two levels. In Erbil city, homes range in size from 100 m2 to more than 300 m2. However, complexes are multi-story structures that come in a range of dimensions [14]. A single-family home serves as the case study for this investigation. The house's west façade does not face the sun's rays because it is connected to other structures. With a net building area of 94.1 m2, the property has a land area of 244 m2. The building includes a penthouse and is 3.40 meters high with a single-story design.

Figure 1. Houses in Erbil Citadel

Figure 2. Case study (Ashty House) in Erbil City

According to the latitude 36.2ºN and longitude 44.0ºE, Erbil city province is in the north of Iraq and in the hot and dry region, which is the widest climate in Iraq [15]. The Ashty's House, one of the Contemporary and Prevailing houses in Erbil in current time, was selected for study and used to field measure and compare the results of software simulation to validate the Design Builder software. For this reason, measuring the temperature and humidity in this house and simulating it in Design Builder software, apart from validating the software, can also help to understand the thermal behaviour of these modern houses. The case study for this research is a modern residential building known as "Ashty House," located in Erbil City, the capital of the Kurdistan Region of Iraq. Erbil is characterized by a semi-arid climate, with hot summers and mild winters, which makes the study of indoor air temperature and thermal performance particularly relevant for residential buildings in this region. The Ashti House was selected as a representative example of modern residential architecture in Erbil due to its design, construction materials, and alignment with contemporary housing trends in the city.

Location and Orientation, Ashti House is situated in a residential neighbourhood within Erbil City, which is part of a rapidly urbanizing area. The building's geographic coordinates place it in a region with significant solar exposure, making it an ideal candidate for studying the effects of climate on indoor air temperature. The house is oriented to maximize natural light and ventilation, with its main façade facing southeast. This orientation is typical of modern residential buildings in Erbil, as it helps to balance solar heat gain during the day while minimizing excessive overheating during the peak summer months.

Architectural Features, the architectural design of Ashti House reflects the characteristics of modern residential buildings in Erbil. It is a two-story structure with a total floor area of approximately 250 square meters. The building features a reinforced concrete frame with brick infill walls, which is a common construction method in the region. The exterior walls are finished with a combination of plaster and paint, providing a moderate level of thermal insulation. The roof is flat, a typical feature in Erbil's residential architecture, and is constructed with reinforced concrete covered by a waterproofing layer and thermal insulation. The windows in Ashti House are double-glazed with aluminium frames, designed to reduce heat transfer and improve energy efficiency. The building also incorporates shading devices, such as overhangs and pergolas, to mitigate direct solar radiation. These features are representative of modern residential buildings in Erbil, which aim to balance aesthetic appeal with functional performance in a challenging climate.

Ashti House serves as a representative model for modern residential buildings in Erbil due to its adherence to contemporary architectural trends and construction practices. The use of reinforced concrete and brick, along with double-glazed windows and thermal insulation, reflects the standard building practices in the city. Additionally, the building's orientation and design elements, such as shading devices, demonstrate an awareness of the local climate and the need for energy-efficient solutions.

Modern residential buildings in Erbil are typically designed to accommodate the city's growing population while addressing the challenges posed by its climate. Ashti House exemplifies this approach by incorporating features that enhance thermal comfort and reduce energy consumption. By studying the indoor air temperature of this building, the research aims to provide insights that can be applied to similar residential structures in Erbil, contributing to the development of more sustainable and energy-efficient housing solutions in the region.

To validate the field-measured data, the indoor air temperature of Ashti House was monitored over a specified period using high-precision temperature sensors placed in key locations within the building. The data collected was then compared with the results generated by Design Builder simulation software. Design Builder is a widely used building performance simulation tool that allows for the modelling of thermal behaviour based on input parameters such as building geometry, materials, and climate data. The software was calibrated using the field-measured data to ensure accuracy and reliability in the simulation results. By focusing on Ashti House as a case study, this research provides a detailed analysis of the thermal performance of modern residential buildings in Erbil City. The findings are expected to inform future design and construction practices, promoting energy efficiency and thermal comfort in the region's residential sector.

Figure 3. Ashty House complex

Figure 4. The materials used in the building's outside walls-roof-floor

The validation process involves comparing the full-scale computer simulation model with the experimental findings collected during the 2023 summertime from the Ashty House, as shown in Figure 3. A single room with dimensions of 6.0m by 4.0m by 3.2m from floor to ceiling is the living room in question. There are steel frames for the windows and a mix of glass and metal curtains. This home's windows have two-sectioned single plastic processing panes. The Turkish Standard Institute ascertained that the windows in this structure have a U-Value of (5.2W/m2 K). The outer face of the walls is plastered with cement, while the inner walls are plastered with gypsum. The walls are supporting system walls. Concrete hollow blocks with a 20cm thickness make up most of the construction. The home's roof is a 20cm thick, flat slab of reinforced concrete. Gypsum is used to plaster the internal face of the roof, leaving its outside open to the elements.

As seen in Figure 4, the floors of "Ashty" homes have also been built using modern materials, as have the outer walls and roofs. The floor is composed of four different types of materials: 25cm of compacted dirt, a nylon membrane, and 8cm of plain concrete. Cements made of mortar (1:3), Sand, and cement have been applied to the 5cm thick plain concrete. Porcelain tiles that are 2cm thick are used for the polish. The kind and thickness of the materials used in Ashty dwellings were taken into consideration while calculating the U value for the floor, as per the field observation.

2.2 Measurements (Experimental tools)

Since the study's main objective is to validate a simulation software program, Design Builder, a house performance simulation, was used to model the thermal performance of one of the selected modern houses. Through a comparison of the air temperature between simulated and field measurements, the study seeks to validate this simulation software. The 320m2 residence in Erbil city is selected to conduct the field measurements, as shown in Figure 5. The one of the living rooms of the residence was used to measure the air temperature. The living room that was selected faces south. The Erbil meteorological authority revealed the temperature of the outside air. Figure 6 shows that the apartment had no heating or cooling systems and was naturally circulated.

Measurements of the microclimate were combined. During the warm season, data devices were utilized to examine the climate (June 2023 and July 2023). Measurements were made every three hours to monitor weather conditions during the investigation, which was planned from 9:00 to 18:00. Because these are the hours when people utilize public transit the most, these times of day were chosen. Air temperature (Ta) was measured using data loggers to gather microclimatic data. Equipment was positioned for all measurements at a height of 1.5 meters, which is the average adult's centre of gravity and suitable for areas where people are expected to sit or walk [16].

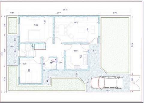
Figure 5. First floor plan of Ashty House

Figure 6. Front view for Ashty House

Figure 7. The equipment position inside the living room in case study

Figure 8. The instruments used for the field measurement

As illustrated in Figure 7, the Ashty House thermal state was quantitatively measured using a Digital Temperature Humidity Meter Model UT332+, which mainly measures air temperature and relative humidity. As illustrated in Figure 8, the selected data logger has a measurement range of -20℃ to 70℃ with an accuracy level of ± 0.3℃ in a temperature range of 00℃ to 500℃. Throughout the testing days, the device was placed in the middle of the living room, 1.5 meters above the finished floor level.

2.3 Building performance simulation tools

As the global emphasis on sustainable living and energy efficiency intensifies, the role of advanced simulation tools in predicting environmental parameters within residential spaces becomes increasingly pivotal [16]. Design builder simulation software emerges as a frontrunner in this domain, promising to forecast indoor air temperature precisely [17]. Yet, the question arises: how reliable are these simulated projections without empirical corroboration? The present discourse contends that the software's efficacy is critically validated through meticulous comparison with field-measured data. By grounding simulations in real-world observations, we can affirm their capacity to not only mirror actual conditions but also enhance strategies for thermal conditions and optimal climate management within homes [18]. Therefore, these simulations' validity extends beyond theoretical models; they become instrumental in actualizing energy-saving measures and improving residents' comfort by predicting and controlling indoor environments. This alignment between simulation and measurement underscores a transformative potential for thermal conditions initiatives, situating design builder software as an indispensable tool in modern residential planning and environmental stewardship [19].

To further substantiate the pivotal role of Design Builder simulation software in modern residential planning, one must consider the empirical foundation laid by field-measured data, as highlighted by Ochedi [20]. This correlation between simulation outputs and tangible data serves not merely as validation but as a critical enhancement tool for architects and engineers striving for energy efficiency and optimal climate control [21]. The study conducted at Iran University of Science & Technology illustrates that when simulations are meticulously aligned with measured parameters, discrepancies are minimized, leading to higher fidelity models. Such rigor ensures that the projected environmental conditions within residential spaces reflect reality with an impressive degree of accuracy [22]. More importantly, this synergistic relationship allows for simulations to pre-emptively identify areas where thermal condition can be improved, enabling proactive modifications that might otherwise go unnoticed in the design phase [23]. Thus, Design Builder transcends its theoretical confines to become an actionable, practical instrument in crafting sustainable living environments. Consequently, the validation offered by direct field measurements not only reinforces trust in such technologies but also catalyzes their potential as a cornerstone in contemporary thermal condition design practices [24].

Building upon this foundation, the validation of Design Builder simulation software through field-measured data, as posited by Holm et al. [25], underscores its effectiveness in accurately forecasting air temperature in modern residential buildings. Their study, which simulated the annual energy consumption of an office building in Semnan, Iran using Design Builder software, highlights the critical alignment between real-world data and simulation outputs. Such precision is crucial not only for establishing trust but also for elevating the role of simulation tools from theoretical constructs to practical applications that significantly enhance energy efficiency and indoor climate control [26]. By comparing simulation results with empirically gathered data, architects and engineers can refine their models to a level where they predict actual environmental conditions with notable accuracy. This congruence allows for proactive adjustments in building designs, effectively mitigating energy wastage and optimizing climate control from the outset. Consequently, Design Builder stands as a pivotal resource in sustainable architectural practices, where its validated simulations provide an invaluable framework for innovative thermal conditions strategies that are indispensable in modern residential planning [27].

In this Design Builder validation study, the experimental temperature measured in the previously stated experiment is contrasted with the information gleaned from Design Builder simulation findings. This study was conducted using Design Builder version 6.1.0.006 running on Energy Plus 9.1.0. The Erbil Meteorological Agency provided the climate data for the study area, Erbil, during the ten-year period from 2008 to 2017. According to the data, the average monthly high and low temperatures were 37.80°C and 15.20°C, respectively. The range of relative humidity is 19% to 76%. The average monthly maximum solar radiation was 19.5 MJ/m2/day, whereas the average monthly minimum was 13.3 MJ/m2/day. Monthly mean wind speeds ranged from a maximum of 4.5 m/s to a minimum of 2.8 m/s.

The findings of an observation led to the selection of a real-world case study to examine the significance of considering the physical characteristics and design of a home, in addition to the social and cultural profiles of its residents. To evaluating house performance in terms of energy demands for heating, cooling, lighting, and thermal comfort [28], Design Builder Software [29] was used, with Energy Plus serving as the simulation engine. First, the case study house was simulated to ascertain the requirements under ideal circumstances. Then, to determine the ideal thermal comfort, many envelope layouts were evaluated. The design process was directed by the simulations' results, which also developed the foundation for building thermal conditions homes in semi-arid areas to meet environmental requirements like thermal conditions [30].

The Ashti City 2 investment project in Erbil, the capital of Kurdistan, Iraq, is where the baseline building was chosen. The two-story home module depicted in Figure 9 has a kitchen, living room, two bedrooms, a storeroom, a reception area, and a bathroom. As seen in Figure 10, the house is situated on 204 m2 of land and has a total construction plan of 158 m2, a ground floor plan of 135.8 m2, and a penthouse of 22.6 m2 on the floor. Based on the interim Iraqi construction code, the construction specifics used in the modeling were taken from the Eskan company [31].

The process of creating the building model in Design-Builder involves several critical steps, including defining the building geometry, inputting material properties, specifying HVAC systems, and setting environmental conditions. This article explains the methodology, input parameters, assumptions, and simplifications made during the simulation process and discusses their potential impact on the accuracy of the results.

2.3.1 Building model creation in Design-Builder

The first step in the simulation process is to replicate the physical structure of the residential building in the software. This involves (1) inputting dimensions (The building's floor plan, wall heights, roof structure, and window placements are entered into the software. (2) zoning (The building is divided into thermal zones based on usage patterns (e.g., living rooms, bedrooms, kitchens). (3) orientation (The building's orientation relative to cardinal directions is specified to account for solar radiation effects), as seen in Figure 9.

Figure 9. 3D model to show zones dimensions & orientation

Material Properties, the thermal properties of construction materials are critical for accurate simulation. These include:

Wall and roof materials (thermal conductivity, density, and specific heat capacity of materials such as concrete, insulation, and plaster). Glazing properties (U-values, solar heat gain coefficients (SHGC), and visible transmittance of windows).

Flooring materials (Thermal resistance and heat storage capacity). HVAC Systems, the heating, ventilation, and air conditioning (HVAC) systems are modeled to reflect the actual systems installed in the building. This includes System type: split air conditioning units, central heating, or natural ventilation. Setpoints: Indoor temperature setpoints for heating and cooling. Efficiency: Energy efficiency ratings of HVAC equipment. Environmental conditions, the simulation incorporates local climate data for Erbil City, Iraq, including:

Weather files (Hourly data for temperature, humidity, wind speed, and solar radiation). Internal gains (Heat generated by occupants, lighting, and appliances).

2.3.2 Input parameters, assumptions, and simplifications

The accuracy of the simulation depends on the quality of input data. Key parameters include Field-measured data (Indoor air temperature readings collected from the building). Occupancy schedules (Patterns of human activity and equipment usage).

Infiltration rates (Air leakage through windows, doors, and other openings).

Assumptions, to simplify the modeling process, several assumptions are made (Uniform material properties: homogeneous thermal properties are assumed for walls, roofs, and floors, ignoring potential variations).

Steady-state conditions (The simulation may assume steady-state conditions for certain periods, neglecting transient effects.

Idealized HVAC operation: HVAC systems are assumed to operate as per design specifications, without accounting for maintenance issues or user behavior). Simplifications are necessary to reduce computational complexity. Neglecting minor heat sources (small heat gains from electronics or cooking appliances may be excluded). Simplified geometry (Complex architectural details, such as curved walls or decorative elements, are often omitted , as seen in Figure 10.

Figure 10. The model generated in Design Builder software

2.3.3 Impact on simulation accuracy

The assumptions and simplifications made during the modeling process can influence the accuracy of the simulation results. Key factors include:

Material Properties: Inaccurate or generalized material properties can lead to errors in predicting heat transfer through building envelopes. For example, neglecting thermal bridging effects may underestimate heat loss.

HVAC System Modeling: Assuming ideal HVAC performance may not reflect real-world inefficiencies, such as uneven air distribution or equipment malfunctions, leading to discrepancies between simulated and measured temperatures.

Weather Data: Using standardized weather files instead of real-time data may fail to capture short-term variations in outdoor conditions, affecting the accuracy of indoor temperature predictions.

Occupant Behavior: Simplified occupancy schedules may not account for variations in human activity, such as irregular use of appliances or changes in thermostat settings, which can significantly impact indoor temperatures.

The building supplies for the case studies were determined by measurements and observation surveys, as seen in Figure 11. Modeling and simulations were performed using these building requirements, which were taken from the Design Builder template. Since the buildings were thought to be free running (without heating or cooling), the HVAC template was changed to the ventilating mode. The case's floor, wall, and roof construction materials are listed in Table 1.

(a) Construction materials for wall (Ashty House)

(b) Construction materials for roof (Ashty House)

(c) Construction materials for floor (Ashty House)

Figure 11. Construction materials for Ashty House

Table 1. The case study's building supplies based on the location analysis

Ashti House Construction Details According to Iraqi Construction Code

House details

Details of the construction

The U value W/m2 k

External wall

2cm Cement & sand render+20cm hollow concrete block +2m Gypsum

2.719

Internal partitions

2cm Gypsum +20cm hollow concrete block +2m Gypsum

2.544

Roof

20cm reinforced concrete with %1 steel bars + 2cm Gypsum

3.645

Ground floor

Soil +10cm gravel +10 concrete +2.5cm Terrazu Tile

2.61

Internal floor

2.5cm Terrazzo tile +5cm sand &cement mix +20cm reinforced concrete with %1 steel bars + 2cm Gypsum

1.119

Windows

PVC (polyvinyl chloride) with one single pane of 6mm

5.77

Table 2. Parameters that Design Builder uses to simulate the case study

Design Builder Input Settings to Simulate the Case Study

Location

Erbil, Iraq

Latitude/longitude [deg]

36.23/43.97

Local time zone [GMT +/−N hours]

+3 hours

Number of occupants [person]

4

Cooling/Heating setpoint temp. [℃]

25/21

Cooling and heating system

Split air conditioner

Using shading device

No

Lighting Template

LED

Design Builder is appropriate for architects, efficiency advisors, and building service technicians since it uses the most recent Energy Plus simulation engine to determine building performance. For the simulation step to produce precise and location-specific findings, several building and environmental factors must be carefully taken into consideration [32].

The case study building's comprehensive simulation model and parameterization are explained in the following paragraphs. Details of the structure, including the floor plan, wall assembly, roof, floor, windows, and the kind and thickness of materials used in the building, are taken from the Ashti City [33] project (home type B) and are utilized to outline the housing module using Design Builder software. The baseline module with the orientation (00 South) was designed using Design Builder. Erbil City's hot-dry climate was identified using accurate weather information from the Energy Plus weather data database [34], of which the simulation made use. To get accurate and effective results for the study, it is essential to keep these parameters constant across all simulations. Table 2 shows the input settings used by Design Builder to simulate the case study.

2.4 Verification and validation of energy plus™ simulation results

To evaluate the degree of accuracy, caliber, and dependability between real and simulated outcomes, the validation and verification process for the produced results was necessary. As the most suggested approach in several recent studies, this research used a field measurement test to record the interior air temperature for a predetermined amount of time and compare it with Design Builder results, even though it used a variety of validation techniques as in earlier studies. A Digital Temperature Humidity Meter Model UT332+, a digital recorder that can save data on a monthly, daily, or hourly basis, was used to do this.

This section was to validate the obtained results from Energy Plus™ software. The first section describes the field measuring test used to determine Ashti House's air inside temperature. The second section describes how to utilize Design Builder simulation analysis to estimate the inside air temperature for Ashti House. The correctness of the results is assessed by comparing them with field data.

3. Results and Discussions

The objective of the comparison of simulation and field measurement is to verify the simulation settings, procedures, and parameters for the simulation conditions. It is important to ensure a well-grounded setting for the simulation to give more accurate predictions for the models. The air temperature variable is being compared from two monitoring points which are: Master living and dining areas which are like the locations of the field measurement. If the air temperature deviation percentage is less than 10% that will be a sign of good sign of compatibility between field measurement and simulation data.

As seen in Figure 12 the highest indoor temperature measured by field measurements (32.3℃) was recorded at 3:00 PM in the middle of June 2023, showing that between 1:00 PM and 5:00 PM, the Ashti House was the one that got the highest heat. On June 16, 2023, the lowest recorded interior temperature was 26.60℃, according to the outcomes, the temperature rose steadily between 12:00 PM and 6:00 PM because of too much sunlight and heat from the windows, then dropped a little during the rest of the day. whereas the Ashti House case study's simulation under the identical conditions showed a noticeably high inside temperature (31.8℃) at 3:00 PM in mid-June 2023, and on June 16, 2023, the lowest recorded interior temperature was 25.80℃.

Figure 13 illustrates that the highest indoor temperature measured by field measurements (34.3℃) was recorded at 3:00 PM in the middle of June 2023, showing that from 1:00 PM to 5:00 PM, the Ashti House got the maximum heat. On June 16, 2023, the lowest recorded interior temperature was 28.30℃. The findings demonstrated that, as a result of too much sunshine and heat obtained through the windows, the temperature rose steadily between 12:00 PM and 6:00 PM before modestly dropping for the duration that followed. The Ashti House case study observed a very high indoor temperature (33.6℃) at 3:00 PM in mid-June 2023, whereas the lowest indoor temperature (27.90℃) was measured on June 16th, 2023, using simulation under the same conditions.

Figure 12. Comparison between air temperature measured by (Field measurement – Simulation) inside the room in case study 2 (Ashty House) and outside air temperature in June

Figure 13. Comparison between air temperature measured by (Field measurement – Simulation) inside the room in case study (Ashty House) and outside air temperature in July

Figure 14 shows the average deviation percentage values of air temperature under the same condition in June month from morning 0900 hrs. to 2100 hrs. The validation results have been obtained from the base model under the same conditions, time, and dates of field measurement. The results confirm that all the deviation percentages are under 10%. The deviation percentages between field-measured and simulated data have been shown in Figure 14. For the living and dining areas, the average deviation percentages were between 4.34% to 8.37%, (as shown in Figure 14) indoor air temperature validation data under conditions (closed window and without fan) in June month, also results confirm that all the deviation percentages are under 10%.

Figure 14. Indoor air temperature validation data under condition (close window and without fan) in June

Figure 15. Indoor air temperature validation data under condition (close window and without fan) in July

Figure 16. Design builder thermal comfort graph during summer months

Air temperature data in July have been validated under the same conditions within the same time and dates of the field measurement. The average deviation percentages have been shown in Figure 15 where the average deviation percentages have been found between 3.24% to 8.6% which is relevant to the standard deviation percentage range for air temperature variables. Figure 15 illustrates the deviation percentage bars for air temperature validation under the same conditions.

With a PMV value of -0.77 and a PPD of 49.60%, Figure 16 shows that the comfort analysis in the current house is outside the comfort limitations, implying that the indoor conditions are uncomfortable. This is explained by the absence of thermal insulation and the ongoing use of air conditioning to alleviate the discomfort brought on by Erbil's hot weather. This aligns with the findings of Beizaee and Firth [35], who observed that in hot climate regions during summer, there is an uncomfortable condition in actual thermal sensation, suggesting that residents often experience overcooling.

Validated Design-Builder simulation software is an invaluable tool for optimizing building design, enhancing thermal comfort, and reducing energy consumption. By utilizing advanced computational modelling, the software enables architects and engineers to test various design scenarios in virtual environments before construction begins. This predictive capability is critical for identifying potential inefficiencies or thermal discomforts early in the design process. For instance, Design-Builder allows users to simulate solar heat gain, internal heat loads, and air infiltration rates under diverse climatic conditions, offering insights into how material choices and structural configurations influence indoor temperature regulation. In turn, this data-driven approach facilitates informed decision-making aimed at achieving optimal thermal comfort for occupants while minimizing dependency on artificial heating or cooling systems. Moreover, the integration of energy performance simulations within the platform helps identify high-energy-consuming areas and suggests sustainable alternatives such as improved insulation techniques or renewable energy solutions like photovoltaic panels. These features empower stakeholders to develop designs that are both environmentally responsible and cost-effective over time. Ultimately, Design-Builder demonstrates how simulation technology can bridge theoretical models with practical sustainability outcomes by aligning occupant well-being with resource efficiency goals during all phases of building development.

The validation of field-measured indoor air temperature data through Design-Builder simulation software carries significant implications for the design and operation of modern residential buildings in Erbil City, Iraq. This research highlights the critical role of advanced simulation tools in ensuring optimal thermal conditions within urban dwellings. By effectively calibrating the software with real-world data, designers can predict temperature fluctuations more accurately under Erbil’s unique climatic conditions, characterized by its hot summers and cold winters. Such precise modelling aids architects and engineers in refining building envelope designs, material selection, insulation strategies, and HVAC system configurations to minimize energy consumption while maintaining occupant comfort. Additionally, these findings underline the importance of integrating passive cooling techniques such as optimized window placements or shading devices to combat extreme heat without over-reliance on active cooling systems. For residents of Erbil City, where energy costs are a growing concern, this approach represents not only an economic advantage but also a step towards sustainable living practices. Moreover, operational adjustments informed by validated simulations—such as fine-tuning thermostat settings or seasonal maintenance scheduling-can further enhance a building's performance over time. Therefore, this study underscores how leveraging calibrated simulations as part of both design planning and ongoing operations can significantly elevate the standard of residential construction in rapidly developing urban centers like Erbil City while addressing environmental challenges comprehensively.

4. Conclusion

In an era where architectural innovation seeks to balance comfort, efficiency, and sustainability, the accurate prediction of thermal performance in residential buildings has become paramount. This study investigates the use of Design-Builder simulation software to evaluate the field-measured temperature of the interior air data in contemporary Erbil City residential buildings. Iraq, unveils deviation percentages between projected and actual thermal outcomes. Despite the advanced capabilities of simulation tools like Design-Builder, the persistent disparities observed signal broader issues in both the precision of modelling practices and the integration of real-world variables into design processes. The significance of these findings lies in their implications for the region's growing urbanization, where traditional architectural norms encounter increasing pressures from climate change and modern living demands. By shedding light on these discrepancies, this study underscores the urgent necessity for architects and designers in Erbil to refine their methodologies, ensuring that digital predictions align more closely with on-site realities. This disconnect not only calls attention to technical improvements but also challenges conventional perspectives on how data-driven insights can reshape sustainable architectural practices in a rapidly evolving urban landscape. The generation of the thermal condition dataset of the case study consisted of several main processes; namely, measuring the inside air temperature in the case study (Ashty Home) by field measurements, the second step to validate the data by modelling, using computer-aided design (CAD) applications such as Design Builder. The EnergyPlus™ whole-building energy modelling (BEM) engine was then used to estimate the thermal comfort of the Ashty House successfully. These results were validated using field measurements which indicated a reasonably good consistency between the measured and simulated air temperatures.

Validation of field-measured indoor air temperature data using Design-Builder simulation software is crucial in advancing building performance analysis. This study in Erbil City, Iraq, highlights the importance of accurate simulation models for thermal conditions and occupant comfort in residential buildings. By expanding the scope of research to include different building types, seasons, and climatic regions, future studies can provide a more comprehensive understanding of building performance and contribute to the development of sustainable design strategies. Integrating advanced materials, renewable energy systems, and occupant behavior into simulation models will further enhance their accuracy and applicability. Future studies should include a variety of building types, such as commercial, educational, and healthcare facilities. Each building type has unique thermal characteristics and operational requirements, which can influence the accuracy of simulation models. For instance, commercial buildings may have higher internal heat gains due to equipment and lighting, while educational buildings may have variable occupancy patterns. Incorporating occupant behavior and adaptive comfort models into the simulation process would improve the accuracy of predictions. Future studies could examine how factors such as window opening, thermostat settings, and clothing insulation levels influence indoor air temperatures.

Acknowledgments

Through the Fundamental Research Grant Scheme, the Ministry of Higher Education Malaysia provided funding for this study (FRGS/1/2019/TK10/UKM/02/4).

  References

[1] Ramos, T.F., Naves, A.X., Boer, D., Haddad, A.N., Najjar, M.K. (2024). Sustainability analysis of environmental comfort and building information modeling in Buildings: State of the art and future trends. Eng, 5(3): 1534-1565. https://doi.org/10.3390/eng5030082

[2] Alhilo, I.A., Ismael Kamoona, G.M. (2024). Parametric analysis of the influence of climatic factors on the formation of traditional buildings in the city of Al Najaf. Open Engineering, 14(1): 20220525. https://doi.org/10.1515/eng-2022-0525

[3] Seddik Hassan, A.M., Abd El Aal, R.F.A., Fahmi, A.A.E., Ali, S.M.A., Abdelhady, M.I. (2024). Courtyard geometry’s effect on energy consumption of AlKharga city residential buildings, Egypt. Scientific Reports, 14(1): 11149. https://doi.org/10.1038/s41598-024-60487-8

[4] Ali, H.S., Khayat, M. (2024). Erbil citadel as a brand for the city, the role of residents awareness and perceptions. Sustainability, 16(19): 1-22. https://doi.org/10.3390/su16198529

[5] Mustafa, F.A., Ali, L.A. (2024). Common architectural characteristics of traditional courtyard houses in Erbil city. Ain Shams Engineering Journal, 15(11): 103003. https://doi.org/10.1016/j.asej.2024.103003

[6] Haseeb, Q.S., Yunus, S.M., Aziz, A.I. (2023). Sustainability-Based hybridization interventions, the urban fabric of Erbil Citadel-Iraq-As a case study. Alexandria Engineering Journal, 75: 615-625. https://doi.org/10.1016/j.aej.2023.04.064

[7] Khalil, S., Hamdoon, O., Almakhyoul, Z. (2024). Energy consumption enhancement of a solar under floor heating system in a small family house located in Mosul City, Iraq. Al-Rafidain Engineering Journal, 29(1): 144-153. https://doi.org/10.33899/arej.2024.143521.1288

[8] Ismaeel, H.H., M., H.O. (2023). Performance investigation of a ground-coupled warehouse cooling system with an underground thermal energy storage tank. Al-Rafidain Engineering Journal, 28(2): 131-144. https://doi.org/10.33899/rengj.2023.140170.1253

[9] Salih, S.S.O., Hamakhan, I.I.A., Abdulkader, A.A.A. (2022). Investigation of thermal performance of 3D printing integrated phase change materials in building structure. International Journal of Heat and Technology, 40(3): 843-848. https://doi.org/10.18280/ijht.400325

[10] Ahmed, J.A., Mohammad Yusof, W.F., Mohamed, M.F. (2024). Adaptation of an architectonic traditional building: A systematic review. Jurnal Kejuruteraan, 36(3): 1167-1184. https://doi.org/10.17576/jkukm-2024-36(3)-27

[11] Al Jaff, A.A.M. (2022). Thermal comfort in traditional Erbil Houses. American Journal of Civil Engineering and Architecture, 10(1): 45-56. https://doi.org/10.12691/ajcea-10-1-6

[12] Aziz, F.H., Rasheed, R.O., Ahmed, A.Q. (2022). Historical overview of air temperature of Kurdistan region-Iraq from 1973 to 2017. Journal of Garmian University, 9: 263-271. https://doi.org/10.24271/jgu.2022.149171

[13] Ahmed, J.A., Mohammad Yusoff, W.F., Mohamed, M.F. (2024). The impact of traditional architectonic characters on the environmental and thermal condition of houses: A case study of Erbil, Kurdistan, Iraq. International Journal of Heat and Technology, 42(6): 1969-1982. https://doi.org/10.18280/ijht.420614

[14] Mankuri, D.P.A., Dönmez, Y. (2022). Kentsel kimliğin ve bileşenlerinin değerlendirilmesi: Erbil örneği [Assessment of urban identity and its components: A case study of Erbil]. Bartın Orman Fakültesi Dergisi, 24(1): 157-176. https://doi.org/10.24011/barofd.955905

[15] Wshar Ali, N., Ahmad Barzanchi, A. (2021). Revitalization of the Arab district, Erbil city, Iraq. Eurasian Journal of Science & Engineering, 7(2): 49-70. https://doi.org/10.23918/eajse.v7i2p49.

[16] Ponechal, R., Barňák, P., Ďurica, P. (2022). Comparison of simulation and measurement in a short-term evaluation of the thermal comfort parameters of an office in a low-carbon building. Buildings, 12(3): 349. https://doi.org/10.3390/buildings12030349

[17] Amani, N. (2018). Building energy conservation in atrium spaces based on ECOTECT simulation software in hot summer and cold winter zone in Iran. International Journal of Energy Sector Management, 12(3): 298-313. https://doi.org/10.1108/IJESM-05-2016-0003

[18] Abba, H.Y., Majid, R.A., Ahmed, M.H., Gbenga, O. (2022). Validation of designbuilder simulation accuracy using field measured data of indoor air temperature in a classroom building. Management, 7(27): 171-178. https://doi.org/10.35631/jthem.727014

[19] Luther, M.B., Ahmed, T.M.F. (2019). Revisiting the Comfort Parameters of ISO 7730: Measurement and Simulation. In Building Simulation 2019 (Vol. 16, pp. 4267-4273). IBPSA. 

[20] Ochedi, E.T. (2022). Simulation study of thermal comfort in residential building types: The case of lokoja, nigeria. International Journal of Energy and Environmental Research, 10(3): 1-13. https://doi.org/10.37745/ijeer.13/vol10n3113

[21] Douglass, C., Leake, J. (2020). Energy efficient design using building information modeling and energy simulation, 1990: 22.564.1-22.564.17. https://doi.org/10.18260/1-2--17845

[22] Heidari, A., Sahebzadeh, S., Dalvand, Z. (2017). Natural ventilation in vernacular architecture of Sistan, Iran; Classification and CFD study of compound rooms. Sustainability, 9(6): 1048. https://doi.org/10.3390/su9061048

[23] Mohammadi, A., Saghafi, M.R., Tahbaz, M., Nasrollahi, F. (2017). Effects of vernacular climatic strategies (VCS) on energy consumption in common residential buildings in southern Iran: The case study of Bushehr city. Sustainability, 9(11): 1950. https://doi.org/10.3390/su9111950

[24] Shaeri, J., Yaghoubi, M., Habibi, A. (2018). Influence of iwans on the thermal comfort of talar rooms in the traditional houses: A study in Shiraz, Iran. Buildings, 8(6): 81. https://doi.org/10.3390/buildings8060081

[25] Holm, A.H., Künzel, H.M., Sedlbauer, K. (2004). Predicting indoor temperature and humidity conditions including hygrothermal interactions with the building envelope. ASHRAE Transactions, 110(Part II): 820-826. https://doi.org/10.1016/j.solener.2004.03.002

[26] Indana, H.D., Dinapradipta, A., Samodra, F.X.T.B. (2021). Simulation validation for thermal performance of building envelope material in Humid Tropical Higland Climate. IPTEK Journal of Proceedings Series, (6): 189-194. https://doi.org/10.12962/j23546026.y2020i6.11092

[27] Esabegloo, A., Haghshenas, M., Borzoui, A. (2016). Comparing the results of thermal simulation of rasoulian house in Yazd by design builder software, with experimental data. Iran University of Science & Technology, 26(2): 121-130. https://doi.org/10.22068/ijaup.26.2.121

[28] Cheikhi, W., Baba, K., Lamrani, S.M., Nounah, A., Khalfaoui, M., Bahi, L. (2018). Study of indoor performances of a building using Rammed earth. In MATEC Web of Conferences, EDP Sciences. 149: 02089. https://doi.org/10.1051/matecconf/201814902089

[29] Tayari, N., Nikpour, M. (2023). Investigating DesignBuilder simulation software’s validation in terms of heat gain through field-measured data of adjacent rooms of a courtyard house. Iranian Journal of Energy and Environment, 14(1): 1-8. https://doi.org/10.5829/ijee.2023.14.01.01

[30] Mustafa, M., Ali, S., Snape, J.R., Vand, B. (2020). Investigations towards lower cooling load in a typical residential building in Kurdistan (Iraq). Energy Reports, 6: 571-580. https://doi.org/10.1016/j.egyr.2020.11.011

[31] Nishan S.M.D. (2019). Urban expansion of Erbil and the effects of environmental during the period 1947-2017 (a study in the geography of cities). Journal of Duhok University, 22(1): 452-468, https://doi.org/10.26682/hjuod.2019.22.1.26

[32] Ibrahim, R. (2016). Assessing sustainable urban forms in Erbil city of Iraq. p. 302.

[33] Husein, H.A., Hama, A., Jalal, Y.S. (2020). Effects of phase change materials on reducing energy consumption in residential buildings: Case study of park view apartments in erbil city. International Transaction Journal of Engineering, Management, & Applied Sciences & Technologies, 11(8): 1-12. https://doi.org/10.14456/ITJEMAST.2020.158

[34] Peeters, L., de Dear, R., Hensen, J., D’haeseleer, W. (2009). Thermal comfort in residential buildings: Comfort values and scales for building energy simulation. Applied Energy, 86(5): 772–780. https://doi.org/10.1016/j.apenergy.2008.07.011

[35] Beizaee, A., Firth, S. (2011). A comparison of calculated and subjective thermal comfort sensation in home and office environments. People and Buildings. https://doi.org/10.13140/2.1.4573.6327