Thermodynamic Renovations in Traditional Huizhou Folk Dwellings: A Case Study

Thermodynamic Renovations in Traditional Huizhou Folk Dwellings: A Case Study

Jie Zhong Xiaoxiao Zhang* Yichi Yang

College of Architecture and Urban Planning, Anhui Jianzhu University, Hefei 230000, China

Key Laboratory of Huizhou Architecture in Anhui Province, Hefei 230000, China

Corresponding Author Email: 
020045@ahjzu.edu.cn
Page: 
937-946
|
DOI: 
https://doi.org/10.18280/ijht.410416
Received: 
26 March 2023
|
Revised: 
17 June 2023
|
Accepted: 
26 June 2023
|
Available online: 
31 August 2023
| Citation

© 2023 IIETA. This article is published by IIETA and is licensed under the CC BY 4.0 license (http://creativecommons.org/licenses/by/4.0/).

OPEN ACCESS

Abstract: 

Exploring the thermodynamics of vernacular architecture offers a novel perspective beyond traditional residence research, paving the way for sustainable residential development. In this context, a historic dwelling in Wentang Village, Qimen County, Anhui Province, China, was analysed. Through simulations of the dwelling's indoor thermal environment using Phoenics software, it was found that enlarging horizontal and rooftop windows can significantly boost indoor air circulation. Such alterations not only diminish the dwelling's energy demands but also elevate the indoor living conditions. The findings underscore the value of passive natural ventilation, suggesting its efficacy in addressing humidity and temperature concerns in traditional Huizhou interiors, especially when active technological interventions are disregarded. This thermodynamically-informed approach to renovation, grounded in climate adaptability, furnishes both theoretical insights and practical implications for the refurbishment and design of classic Huizhou residences.

Keywords: 

thermodynamics, vernacular architecture, traditional Huizhou folk dwellings, renovation, old house, Phoenics

1. Introduction

Heat, being fundamental to all terrestrial life, is intricately linked with thermodynamics, a discipline devoted to examining the nature of thermal motions and their transformative laws from a macroscopic lens. Addressing thermodynamic issues within the realm of traditional residence renovation has garnered significant attention. Recent studies have highlighted a preference for spaces endowed with "thermodynamic textures", spaces with asymmetrical thermodynamic parameters varying within acceptable thresholds. Such inclinations were found to be intricately connected to both the physical and psychological health of inhabitants.

Historical insights from the Roman architect Marcus Vitruvius Pollio in his seminal work, Ten Books on Architecture (De Architectura Libri Decem), delineated a thermodynamic system comprising three integral levels: the external energy system (climate), the environmental regulation system (architecture), and the human body response system (comfort) (Figure 1). Fast forward to 1969, and renowned designer Reyner Banham, in his publication The Architecture of the Well-Tempered Environment, outlined human architectural experiences within three distinct modes of environmental regulation: conservative, selective, and regenerative. It has been posited that the design underlying traditional Huizhou-style folk dwellings epitomises the selective mode. The integration of external elements, such as eaves and grey spaces, amplifies feedback mechanisms in environmental regulation. Such dwellings resonate with a holistic process where local residents conceptualise, fabricate, and construct their habitats, leveraging indigenous materials and harnessing the local climatic conditions. These edifices stand as quintessential manifestations of spatial creation and environmental regulation within the larger tapestry of Chinese folk architectural systems [1-3].

Figure 1. The three-dimensional model of building environment

Constructed with a foundation in thermodynamics, thermodynamic buildings epitomise the synchronisation of energy flow within structures and their surrounding climate. They represent a pivotal frontier in vernacular architectural design. In Sustainable Architecture, Brian Edwards argued for the paramount importance of drawing inspiration from historical contexts. Emphasising the intrinsic value of vernacular architecture, he advocated for leveraging locally-sourced materials, energy, and craftsmanship. Across the globe, vernacular architectural experts have traditionally viewed climate adaptation, environmental regulation, and the pursuit of comfort as both the means and end of construction [4, 5].

Critics like Kiel Moe have lamented the conversion of architecture into climate-controlled monoliths, arguing that such shifts erode cultural, environmental, and social dialogues. The inherent principles of these modern constructions seem to be at odds with the essence of urban life, tending towards insularity. In response to burgeoning climate crises and the ever-mounting energy demands of buildings, global experts have pivoted their focus towards thermodynamic architecture, driven by the imperatives of thermodynamics, climate, and energy. American luminary Louis Sullivan enunciated the nexus between function and form, postulating that architectural morphology should inherently be subservient to its intended function. Pioneers like Malaysian architect Jingwen Yang and Indian stalwart Charles Correa have proffered theories entrenched in bioclimatic and ecological designs. For these visionaries, culture, climate, and resources emerge as the cardinal determinants of spatial design, necessitating that architectural forms be dictated by climate, underscored by principles of low-tech, energy-efficiency, and cost-effectiveness. Insights from Li [4], which laid down the foundational principles of thermodynamic architectural forms underpinned by an energy flow mechanism and prototypical design, further enriched this discourse. The profound influence of climate on building performance and energy demands has been well-documented, with a unanimous consensus gravitating towards the imperatives of energy conservation, harnessing natural resources, and delivering salubrious and sustainable habitats. Tao Shou and colleagues embarked on a nuanced exploration of building environmental regulation. Their research, rooted in the concept of "type", evaluated courtyard homes across diverse climatic zones, crafting a thermodynamic building model centred on spatial form, climatic gradients, and climate regulation interfaces. By juxtaposing this "type"-oriented approach against Huizhou-style folk dwellings, a multifaceted thermodynamic building model was devised, elucidating the intricacies of building form structures and their embedded thermodynamic mechanisms from an environmental regulatory standpoint [6-8].

In light of these myriad studies, this study embarked on a simulation of a Huizhou-style traditional dwelling's indoor milieu using Phoenics, calibrated against varying ventilation openings. This was rooted in the climate adaptation principles intrinsic to vernacular architecture and age-old wisdom of passive environmental regulation, with a concerted focus on enhancing the indoor comfort of these traditional dwellings through the prism of thermodynamics. The findings promise to be instrumental in steering the sustainable evolution of traditional Huizhou-style folk habitats.

2. Site and Context

Situated in Wentang Village, Shanli Town, Qimen County, Huangshan City, Anhui Province, China, the project under consideration is recognised within the fifth cohort of traditional Chinese villages. Surrounded by water in the forefront and backed by a hill, the village boasts a plethora of tangible and intangible cultural relics. These include a preserved street pattern, historical edifices, distinctive Huizhou rituals, and the revered dragon dance tradition. Furthermore, the Covenant of Wentang Village, a product of the feudal patriarchal system, serves not only as a testament to the village's enduring peace and stability but also as an insightful resource for sociological investigations.

Wentang Village is categorised into three divisions: Upper Wentang, Middle Wentang, and Lower Wentang. Recent observations have highlighted a significant labour outflow from the village, resulting in a conspicuous ageing of the resident population. This shift has led to reduced village development impetus. Consequently, many traditional folk dwellings have undergone deterioration, a direct outcome of natural forces and human interventions (refer to Figure 2).

Commencing in 2019, a notable transformation was observed. Capitalising on its unique cultural and environmental assets, Wentang Village embarked on the establishment of an artistic hub. This base, designed to encompass a myriad of functionalities—ranging from artistic creation and lifestyle experiences to academic pursuits, artistic interactions, and rural retreats—witnessed the inception of an EPC rural complex. This complex was distinctively characterised by the on-site involvement of artists. To cater to the preliminary needs of these artists, a renovation project focusing on an old house was introduced.

Figure 2. Schematic representation of the project site and adjacent areas

3. Renovation Strategy

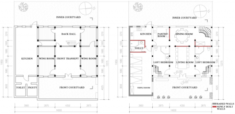
Situated as an ancillary facility within the art centre precinct of the EPC rural complex, the target "old house", with its 120m2 footprint, awaits renovation. Adjacent to this lies the Siwei Hall, a previously forsaken ancestral village hall, soon to be metamorphosed into a rural art museum. The project, quintessentially a two-storey brick and timber construct, boasts three expansive room spaces and a double-pitched roof. While the principal structure and facade remain unscathed, the prolonged neglect has led to a series of issues: roof breaches, inadequate lighting and ventilation, suboptimal space utilisation, and deteriorating amenities, cumulatively resulting in a compromised habitation milieu (refer to Figure 3).

Figure 3. Pre-renovation imagery of the designated project

3.1 Adjusting spatial functions to accommodate contemporary needs

Household spaces' functionality and habitability have perennially been at the heart of civilian concerns. In alignment with the regulations delineated by the Wentang Village for the preservation and development of traditional dwellings, renovations to historic edifices are bound by two imperatives: Firstly, the building's primary structure must be inviolate; secondly, localised refurbishments, both internally and externally, should seamlessly integrate with the village's overarching aesthetic. These edicts present the design consortium with a dual challenge: ensuring the post-renovation architecture is congruent with contemporary living standards, whilst paying homage to the village's environmental and architectural heritage; and ingeniously incorporating a modern lifestyle into this traditional milieu, engendering spaces conducive to local inhabitant interaction and communication.

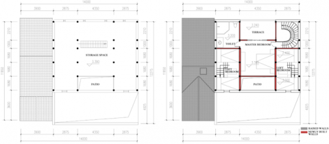
The resident artist ensemble, anticipated occupants of this project, comprises five permanent members. Their collective stipulation dictates the transformed dwelling should accommodate between 5 to 8 individuals, provisioning a diverse array of living quarters (inclusive of a double room, twin room, and triple room), each appended with autonomous sanitary facilities. Communal zones, namely the living and dining areas, must be distinctly demarcated, yet harmoniously assimilated. In addition, facilities conducive to the artist's multifarious pursuits - creation, discourse, display, dining, and guest reception - are obligatory. The proposed modification blueprint includes the dismantling of the existing staircase, the introduction of a translucent circular partition to provide a delineation between the dining and living spaces, thereby enhancing the spatial hierarchy and comfort of both zones. The second storey's peripheral rooms, previously designated as the pigsty and storeroom, are envisioned to be reconfigured into four private chambers. Inclusion of bathrooms, a kitchen, a larder, and other quintessential amenities are paramount to cater to the artist's rudimentary needs. Post refurbishment, the functional floor area is anticipated to encompass approximately 200m2.

Figure 4. Plane view of the first floor before and after renovation

3.2 Intensify available resources to increase the utilization of space

Intensification means to make full and rational use of available resources, modern management skills and techniques, as well as the active effect of human resources to improve work efficiency and increase outcome. Intensified design refers to a design mode that is efficient, effective, and with the intensified feature. To meet the specific requirements proposed by artists, the characteristics of all kinds of roles in house building have been considered, and a joint design team consisting of architects, artists and local craftsmen was formed, attempting to practice a collaborative innovation mode of intensified renovation of traditional folk dwellings that is originatd by artists, fabricated by local craftsmen, and coordinated by architects. How to use appropriate techniques to explore the spatial and environmental adaptability of the old house based on the introduction of modern functions is a tough question faced by the design team, the designers should think out of the box of original design ideas, reinforce and repair the damaged structures, sort out and integrate the internal space of the old house, and expand the design ideas from plane design to space design. Specific measures include: keep the height of some parts of the hall unchanged, reduce the floor height of the dining room and exit the patio, in this way, the view of the master bedroom could be broadened, and the insufficient height of the sloping roof space could be solved; re-arrange the storage room on the second floor and optimize the function of the second floor to form private bedroom spaces; connect the upstairs and downstairs to transform the wing rooms into a loft space, with bathroom on the first floor and independent bedroom on the second floor, in this way, the spatial changes of wing rooms have been increased and the utilization of building space has been improved [9-12] (see Figures 4, 5, 6).

Figure 5. Plane view of the second floor before and after renovation

Figure 6. Drawing of the wing rooms before and after renovation

4. Indoor Thermal Environment Improvement of the Old House Based on Thermodynamics

Natural ventilation is an easy and effective way to improve the thermal environment inside buildings as it can save energy, improve air quality, and increase the comfort of human body. In an environment with a relative humidity not greater than 80%, a temperature not higher than 28℃, and good natural ventilation, human body would have a comfortable feeling. If the indoor temperature is higher than 26℃ and the natural ventilation is poor, then the human body would feel uncomfortable. Applying the laws of thermodynamics to architecture means to take air as the main character of space arrangement, and the building as a material structure, and use the order of elements in the structure to control energy flow in the space, thereby keeping a balance in the structure. The thermodynamics-guided natural ventilation has been adopted in this study as the primary strategy to renovate the thermal environment of the house and meet the basic requirements (namely tolerable temperature) of the occupants.

The natural ventilation of buildings is affected by many factors, including the climate, external wind environment, and the micro-environment inside the building. In different environments and reasons, a building’s requirement for wind differs. Qimen County is located in the western foothills of the Huangshan Mountains, it is one of the six counties under the jurisdiction of ancient Huizhou. Terrain of the county is higher in the north and lower in the south; middle and low mountains, hills, basins and narrow river valleys intertwined in this area, constituting a county with 90% of its area covered by mountainous regions, and the rest 10% is farmlands and waters. Climate of this region is the north subtropical humid monsoon climate featured by significant temperature changes, insufficient sunlight, and frequent rainy days in springs, high temperature and humidity in summers, high daytime temperatures and low morning and evening temperatures in autumns, and cold, dry, and sunny days in winters. Other weather conditions of this region include: average annual temperature between 15℃ and 16℃, extreme low temperature between 7.7℃ and 9.9℃, extreme high temperature between 40℃ and 41℃, total annual solar radiation between 76 and 95kcal/m², dominant wind in summer is southwest wind with an average wind speed of 1.6m/s. According to the enthalpy-humidity graph showing in Figure 7, the problem of hot and humid summer days is prominent in Huizhou, and the primary task of local climate control is to solve this problem. Via appropriately increasing the area of natural ventilation openings in the house, and guiding the air flow patterns inside the building to take away the extra heat to cool down the structure, the said problem can be effectively alleviated, and this is the best strategy to improve indoor air quality and body comfort [13-19] (see Figure 7).

Figure 7. Enthalpy-humidity conditions of Huizhou area

(Source: Drawn by authors)

Table 1. Parameter setting of outdoor wind environment simulation

Project

Wind Direction

Wind Speed (m/s)

Profile Type

Pow Lawer Index

Turbulence Models

Total Number of Iterations

Parameter Value

SSW

1.6

Power Law

0.143

KEMODEL

2500

Table 2. Wind pressure at openings in indoor wind environment simulation

Position

Southwest Gate

East Gate

Northwest Window 1

Northwest Window 2

Northwest Window 3

Southeast Window 1

Southeast Window 2

Southeast Window 3

Wind Pressure (pa)

0.12

-0.27

0.05

0.12

0.20

-0.30

0.1

0.2

4.1 Wind environment simulation and analysis of the old house

4.1.1 Parameter setting

The wind environment of the target project was simulated in a sequence that the outdoor environment goes first and indoor environment goes later. That is, at first, through the simulation of the outdoor wind environment of the target project, the surface wind pressure of the target project (see the white house in the first photo shown in Figure 3) was attained; then, with wind pressure values at each opening of the building as known parameters, the indoor wind environment of the target project was simulated.

As for the simulation of outdoor wind environment, the range that is four times the length (H) of the target project was taken as the simulation area, the length and width of the calculation area is 9H and the height is 3H, the setting of other parameters are shown in Table 1.

For the setting of grids in the indoor wind environment simulation, half the size of the smallest part of the building was taken as the minimum grid size, and the wind pressure values at each opening are shown in Table 2.

4.1.2 Conditions of indoor and outdoor wind environment

(a) Simulation results

According to the simulation results of summer outdoor wind environment of the target project (shown in Figure 8), it can be seen that in a wind field of 1.6m/s SSW wind, the wind speed around the artist house was within the range of 0-1m/s, the maximum wind speed around the house was 1m/s, the surface wind pressure was within the range of -0.3-0.2 Pa, and the maximum and minimum wind pressures appeared at the south-west wall position of the house and at middle position of the roof.

According to Figure 9, in case of typical summer outdoor wind direction and speed, the indoor wind speed at the height of 1.5m in the target project was within the range of 0-4m/s, the wind speed at each opening was within the range of 2.0-2.25 m/s, and the wind speed in other parts was below 2.0 m/s. The indoor air age at 1.5m height was within the range of 0-1800s, except that the air age at the position 1m near the south wall of the auxiliary room was more than 1000s, the air age at other positions of the house was all shorter than 1000s.

Cloud map of outdoor wind speed

(a)

(b)

Figure 8. Surface wind pressure of the house

(a)

(b)

Figure 9. Wind speed and air age at 1.5m height of the house

(b) Result analysis

The summer wind speed near the old house is low, and the average wind speed is only 0.48m/s. Two reasons can cause such result: first, the outdoor buildings are arranged in rows and parallel to the direction of typical summer wind, so air can hardly flow into the main openings; second, the density of buildings at the site is high, so the air flows of the target project are blocked by surrounding buildings and walls. 

Under the original window conditions, the indoor ventilation of the old house is poor due to the low inlet wind speed, moreover, the small area of openings and their unreasonable arrangement are not conducive to indoor ventilation, so it’s hard to form the through flow [20, 21].

4.2 Simulation and analysis of the improved indoor wind environment of the old house

The target project is limited by its original building structure and the functions of existing rooms, so the renovation design of the indoor thermal environment needs to make full use of the local weather conditions and propose scientific and reasonable strategies based on ensuring the stability of the building structure and the function requirements of the rooms.

For the target project, on the premise of ensuring the structural stability of the building and preserving its original appearance style, measures of increasing the opening area of horizontal windows and adding new surface ventilation holes could be taken to increase air convection and vertical air flow, thereby improving the indoor thermal environment of the house. To visualize the improvement effect of these two solutions and formulate a feasible design scheme, the improvement indicators were simulated in the software.  

(a)

(b)

Figure 10. Wind speed and air age at 1.5m height in case of 5m2 rear windows

4.2.1 Solution 1 (enhance horizontal convection - wind pressure ventilation)

The wind pressure ventilation means that when the wind is blowing towards the front side of the house, the pressure difference between the positive pressure area on the windward side and the negative pressure area on the leeward side can make the air in the positive pressure area flow towards the negative pressure area. By adjusting the area of openings on the building, a natural ventilation running through the inside of the building could be attained. Windows at the back of the house are on the windward side, but the area of rear windows is small. Solution 1 proposes to increase the opening area of rear windows to improve indoor ventilation, specifically, under the premise that the wind pressure values at the existing openings remain unchanged (as shown in Table 2), simulation was carried out in case that the opening area of rear windows is 5m2, 7.5m2 and 10m2, respectively.

Simulation results shown in Figures 10-12 suggest that, the indoor wind speed is within the range of 0-0.5 m/s, and the maximum age of indoor air is 1600s, 1400s, and 1350s, respectively. Based on above results, it’s known that in case that the area of rear windows is 5m2, the improvement of average indoor wind speed is small; if the area of rear windows is 10m2, then the improvement of average indoor wind speed is large, and the horizontal air flow in the house is obvious.

(a)

(b)

Figure 11. Wind speed and air age at 1.5m height in case of 7.5m2 rear windows

4.2.2 Solution 2 (enhance vertical convection - thermal pressure ventilation)

The thermal pressure ventilation is to guide air movement in the house based on temperature difference and height difference. The pressure difference between the low-temperature air at the bottom of the courtyard and the high-temperature air at the top causes the air to move from the bottom upwards, thereby creating a natural ventilation. In the renovation design scheme, opening a hole at the top of the courtyard can enhance the thermal pressure ventilation of the target project.

Based on the original vertical space pattern and the wind pressure distribution on the surface of the building, Solution 2 arranges openings on the surface of courtyard top where the wind pressure is lowest to enhance indoor ventilation. That is, under the premise that the wind pressure values at existing openings remain unchanged, it adds a skylight on the roof of the courtyard top according to the surface wind pressure distribution of the building (see Figure 2).

The above two situations were simulated and the results are shown in Figures 13 and 14. Under both conditions, the indoor wind speed was within the range of 0-5m/s, and the air age was within the range of 0-300s. According to the simulation results, adding a 3m2 skylight at the top of the courtyard can significantly enhance the vertical convection of indoor air, and the profile wind speed, indoor ventilation, the air age can all be improved.

(a)

(b)

Figure 12. Wind speed and air age at 1.5m height in case of 10m2 rear windows

(a)

(b)

Figure 13. Wind speed and air age of the profile without skylight

(a)

(b)

Figure 14. Wind speed and air age of the profile with a 3m2 skylight

(a)

(b)

Figure 15. Wind speed and air age of the profile after merging Solutions 1 and 2

4.2.3 Solution 3 (A merge of Solutions 1 and 2)

To get a more reasonable strategy of indoor ventilation improvement and consider both the thermal and light environment requirements and the energy consumption of the building, the measures proposed in Solution 1 (increasing the area of rear windows to 10m2) and Solution 2 (adding a 3m2 skylight at the top of the courtyard) were combined, and changes in indoor wind speed and air age were observed, as shown in Figure 15. 

Simulation results suggest that, after simultaneously increasing the area of rear windows and adding a skylight, the average indoor wind speed can reach 1.8m/s, and the improvement of indoor ventilation and air age will be remarkable.

4.2.4 Summary

Results of the three simulations suggest that, for Solution 1, after increasing the area of rear windows, the increment of average indoor wind speed is small, if the window area is increased to 10m2, then the horizontal air flow in the house will be significant; for Solution 2, after adding a 3m2 skylight at the top of the courtyard, the improvement of vertical air flow in the house will be obvious, and the profile wind speed, indoor ventilation and air age will be improved; as for Solution 3, increasing the area of horizontal and vertical openings can provide a better indoor ventilation effect for the target project, the comfort degree of the house will be improved, and the energy consumption will be reduced, and this is also in line with the idea of energy saving and environmental protection. These results provide a valuable reference for the renovation design scheme of the target project.

5. Conclusion

(1) Aiming at the prominent problem of hot and humid summer days is Huizhou, based on the theory of thermodynamics, this study proposed that using passive natural ventilation is a good way to improve indoor air flow patterns, take away extra heat, and alleviate the heat and humidity in summer; moreover, it is also an easy and effective way to save energy, improve indoor air quality and comfort.

(2) Object of this research is a renovation project of an old house in the Wentang Village. The indoor wind environment of the house was simulated in Phoenics after increasing the area of horizontal windows and adding a roof skylight, and the results show that: increasing the area of horizontal windows can effectively improve horizontal air flow in the house; adding a roof skylight can effectively improve vertical air flow in the house; and merging the two measures can effectively reduce the energy consumption of the house and improve the quality of indoor living environment.

High-efficiency, low-carbon, and green construction are three major trends for the development of green buildings. This study borrowed the help of thermodynamics, took climate and energy as clews to study the thermodynamics of traditional folk dwellings, and proposed a new methodology for the green and sustainable development of vernacular architecture. The thermodynamics-guided passive indoor natural ventilation strategy proposed in this study can not only reduce energy consumption and dependence on active technology, but also provide technical support for the modernized renovation of traditional Huizhou-style folk dwellings.

Acknowledgements

The study was supported by the National Key R&D Program of China in the 13th five-year (Grant No.: 2019YFD1100904), the Major project of natural science of the Education Department of Anhui province (Grant No.: 2022AH050264), the Special Key project of Peak discipline in Anhui Province (Grant No.: 2021-129).

  References

[1] Sentkiewicz, R., Li, M.Y. (2020). Form, Matter, Flow. Architecture Technique, 26: 36-42. https://doi.org/10.3969/j.issn.1674-6635.2020.08.007

[2] Tao, S., Qiao, L., Tong, Z. (2021). Environmental regulation and typological construction: A comparative study on the architectural thermodynamic model of courtyard dwellings. New Architecture, 198: 123-129. https://doi.org/10.12069/j.na.202105123

[3] Fan, H. (2020). Over view tropical architecture and thermodynamic architecture base on environmental management theory. Journal of Qingdao University of Technology, 41: 68-75. https://doi.org/10.3969/j.issn.1673-4602.2020.03.010

[4] Li, L. (2018). Thermodynamic architectural prototype: Formal principles of environmental mediation. Time + Architecture, 161: 36-41. https://doi.org/10.13717/j.cnki.ta. 2018.03.008

[5] He, M.T., Li, L.X. (2019). Thermodynamic vernacular architecture based on natural energy. Building Energy Efficiency, 47: 79-88. https://doi.org/10.3969/i.issn.1673-7237.2019.10.018

[6] Tao, S., Tong, Z., Qiao, L. (2019). The research of architectural thermodynamic model of Huizhou vernacular architecture. The Architect, 202: 35-44.

[7] Gao, L.Q., Yu, D.F., Fan, H.B., Wen, R.L. (2017). Research on updating design method of the traditional house in northern Hebei province under thermodynamics. Low Temperature Architecture Technology, 39: 119-134. https://doi.org/10.13905/j.cnki.dwjz.2017.04.032

[8] Liu, Y.W., Feng, W. (2011). The application and simulation of passive cooling techniques in the existing building in southern part of China. Huazhong Architecture, 37: 27-29. https://doi.org/10.3969/j.issn.1003-739X.2011.12.008

[9] Bao, L., Jin, H.B. (2016). Functional optimization and performance improvement of traditional brick-timber buildings: Renovation on house by the North River of Zhoutie Town, Yixing City. South Architecture, 173: 16-20. https://doi.org/10.3969/j.issn.1000-0232.2016.03.016

[10] Bao, L., Li, H.Q., Liu, C., Jin, H.B. (2017). The strategy of integrated promotion of function and performance in the renovation of vernacular dwelling: The case of the renovation of vernacular dwelling in the historical City of Yixing, Jiangsu. New Architecture, 174: 12-17. https://doi.org/10.12069/j.na.201705003

[11] Liang, L., Zhang, K., Lu, Q. (2017). Study on building performance simulation of courtyard space reuse: Lingnan traditional vernacular dwelling as an example. New Architecture, 155: 124-127. https://doi.org/10.12069/j.na.201705003

[12] Liu, R.Y., Wang, K.Y. (2021). Modern adaptive renovation of Huizhou traditional residence: Taking the renovation of old Housein Wentang village as an example. Journal of Hefei University of Technology (Social Sciences), 35: 97-103. https://doi.org/10.3969/j.issn.1008-3634.2021.03.013

[13] Zhong, J., Jia, S., Liu, R. (2019). Improvement of indoor thermal environment in renovated Huizhou architecture. International Journal of Heat & Technology, 37(2): 633-640. https://doi.org/10.18280/ijht.370235

[14] Zhang, X., Zhong, J. (2022). Thermal environment analysis and thermal comfort evaluation of Huizhou folk dwelling houses guided by auxiliary interior space layout. International Journal of Heat & Technology, 40(4): 993-1000. https://doi.org/10.18280/ijht.400417

[15] Cheng, P., Xiao, S., Li, Y., Bi, Z. (2021). On the landscape composition of traditional village in Huizhou district–A case study in Qizili village. In E3S Web of Conferences, Guangzhou, China, Vol. 237, pp. 04027. https://doi.org/10.1051/e3sconf/202123704027

[16] Qi, W., Li, M., Xiao, H., Zhang, J. (2021). Study on the influence of tourists’ value on sustainable development of Huizhou traditional villages--A case of Hongcun and Xidi. In E3S Web of Conferences, Harbin, China, Vol. 236, pp. 03007. https://doi.org/10.1051/e3sconf/202123603007

[17] Asadi, S., Fakhari, M., Sendi, M. (2016). A study on the thermal behavior of traditional residential buildings: Rasoulian house case study. Journal of Building Engineering, 7: 334-342. https://doi.org/10.1016/j.jobe.2016.07.012

[18] Zhong, J., Jia, S.H. (2013). Analysis about the traditional dwellings passive technology energy efficiency in Huizhou. Applied Mechanics and Materials, 253: 635-640. https://doi.org/10.4028/wwwscicntific.net/AMM253-255.635

[19] Dong, J. (2017). Research and application of virtual reality technology in the restoration of ancient buildings in Huizhou1. Acta Technica CSAV (Ceskoslovensk Akademie Ved), 62(1): 289-299.

[20] Yu, H. (2022). Research on environment-friendly perspective of Huizhou traditional residential courtyard based on CFD simulation. In 2nd International Conference on Internet of Things and Smart City (IoTSC 2022), Xiamen, China, Vol. 12249, pp. 474-482. https://doi.org/10.1117/12.2636470 

[21] Wei, A., Cao, Y., Rong, W. (2022). Research on the application of three-dimensional digital model in the protection and inheritance of traditional architecture: –Take the example of the Ma Tau Wall of Huizhou architecture. In Proceedings of the 4th International Conference on Image Processing and Machine Vision, Hong Kong, China, pp. 32-36. https://doi.org/10.1145/3529446.3529452